Description
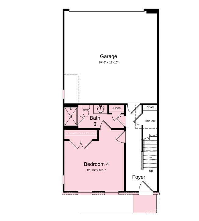
What's Special: 1st Floor Guest Bedroom | End Unit | 3 Full Baths | Gourmet Kitchen. New Construction - Ready Now! Built by America's Most Trusted Homebuilder. Welcome to the Breckenridge II at 2011 Hawksworth Lane in Senata at Research Park! This floor plan offers three stories of stylish living in Charlotte, NC. On the ground floor, an inviting foyer leads to a cozy bedroom with full bath—perfect for guests—alongside a convenient 2-car garage. Upstairs, the heart of the home shines with an open layout featuring a bright kitchen with a spacious island, a cheerful dining area, and a welcoming great room that opens to a private deck. The third floor is your retreat, with a deluxe primary suite boasting dual vanities, a walk-in shower, and a generous closet, plus two additional bedrooms and a nearby laundry room for ease. Welcome to Senata at Research Park in Charlotte, NC. Enjoy the newly opened Starbucks and Chipotle within the community, with Trader Joe’s, La Unica, Sofie’s Steakhouse, and Godavari just across the street. Research Park and Vanguard Campus are right around the corner! Ideally located near major highways and the Lynx Blue Line, these townhomes provide easy access to Uptown Charlotte, work, college, and weekend adventures. Additional Highlights Include: Bedroom 4 with bath 3, added ledge at primary shower, and gourmet kitchen. Photos are for representative purposes only. MLS#4316860
-
4BEDS
-
0.03ACRES
-
3BATHS
-
11/2 BATHS
-
1,952SQFT
-
$233$/SQFT
School Information
Offered by Taylor Morrison of Carolinas Inc: 704-479-6655. Copyright 2026 Canopy MLS. All rights reserved.Description
What's Special: 1st Floor Guest Bedroom | End Unit | 3 Full Baths | Gourmet Kitchen. New Construction - Ready Now! Built by America's Most Trusted Homebuilder. Welcome to the Breckenridge II at 2011 Hawksworth Lane in Senata at Research Park! This floor plan offers three stories of stylish living in Charlotte, NC. On the ground floor, an inviting foyer leads to a cozy bedroom with full bath—perfect for guests—alongside a convenient 2-car garage. Upstairs, the heart of the home shines with an open layout featuring a bright kitchen with a spacious island, a cheerful dining area, and a welcoming great room that opens to a private deck. The third floor is your retreat, with a deluxe primary suite boasting dual vanities, a walk-in shower, and a generous closet, plus two additional bedrooms and a nearby laundry room for ease. Welcome to Senata at Research Park in Charlotte, NC. Enjoy the newly opened Starbucks and Chipotle within the community, with Trader Joe’s, La Unica, Sofie’s Steakhouse, and Godavari just across the street. Research Park and Vanguard Campus are right around the corner! Ideally located near major highways and the Lynx Blue Line, these townhomes provide easy access to Uptown Charlotte, work, college, and weekend adventures. Additional Highlights Include: Bedroom 4 with bath 3, added ledge at primary shower, and gourmet kitchen. Photos are for representative purposes only. MLS#4316860
Related Properties
Based on information submitted to the MLS GRID as of 2026-02-14T23:33:31.513 UTC. All data is obtained from various sources and may not have been verified by broker or MLS GRID. Supplied Open House Information is subject to change without notice. All information should be independently reviewed and verified for accuracy. Properties may or may not be listed by the office/agent presenting the information.The data relating to real estate on this Web site derive in part from the Canopy MLS IDX program. Brokers make an effort to deliver accurate information, but buyers should independently verify any information on which they will rely in a transaction. All properties are subject to prior sale, change or withdrawal. Neither Premier Realty NC nor any listing broker shall be responsible for any typographical errors, misinformation, or misprints, and they shall be held totally harmless from any damages arising from reliance upon this data. This data is provided exclusively for consumers' personal, non-commercial use and may not be used for any purpose other than to identify prospective properties they may be interested in purchasing. © 2026 Canopy MLS.
“Listings courtesy of Canopy MLS as distributed by MLS GRID
Some IDX listings have been excluded from this website.
Digital Millennium Copyright Act
