Description
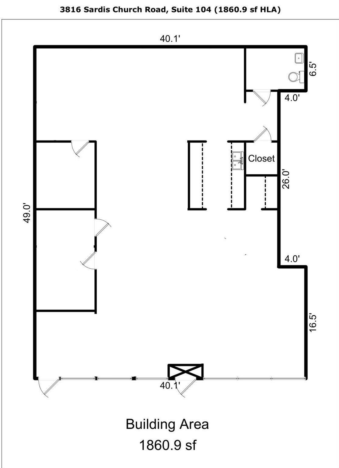
Spacious and versatile 1,860 SF Office/Retail space in the heart of Indian Trail. The interior has been opened up to create a flexible layout ideal for a variety of business uses — from open-concept office setups to retail or showroom space. Features include a welcoming entry area, a conference or meeting area, and a break room with kitchen amenities. Large windows provide excellent natural light and great visibility. Conveniently located near Hwy 74, I-485, and the Monroe Expressway. Tenant responsible for power and janitorial services.
-
0BEDS
-
1.48ACRES
-
0BATHS
-
01/2 BATHS
School Ratings & Info
Offered by Dawson Property Management Inc: 704-438-9834. Copyright 2026 Canopy MLS. All rights reserved.Description
Spacious and versatile 1,860 SF Office/Retail space in the heart of Indian Trail. The interior has been opened up to create a flexible layout ideal for a variety of business uses — from open-concept office setups to retail or showroom space. Features include a welcoming entry area, a conference or meeting area, and a break room with kitchen amenities. Large windows provide excellent natural light and great visibility. Conveniently located near Hwy 74, I-485, and the Monroe Expressway. Tenant responsible for power and janitorial services.
Related Properties
Based on information submitted to the MLS GRID as of 2026-01-13T09:33:51.91 UTC. All data is obtained from various sources and may not have been verified by broker or MLS GRID. Supplied Open House Information is subject to change without notice. All information should be independently reviewed and verified for accuracy. Properties may or may not be listed by the office/agent presenting the information.The data relating to real estate on this Web site derive in part from the Canopy MLS IDX program. Brokers make an effort to deliver accurate information, but buyers should independently verify any information on which they will rely in a transaction. All properties are subject to prior sale, change or withdrawal. Neither Premier Realty NC nor any listing broker shall be responsible for any typographical errors, misinformation, or misprints, and they shall be held totally harmless from any damages arising from reliance upon this data. This data is provided exclusively for consumers' personal, non-commercial use and may not be used for any purpose other than to identify prospective properties they may be interested in purchasing. © 2026 Canopy MLS.
“Listings courtesy of Canopy MLS as distributed by MLS GRID
Some IDX listings have been excluded from this website.
Digital Millennium Copyright Act
