Description
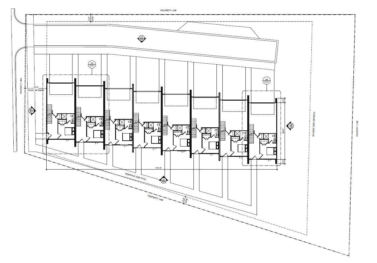
Walking distance from uptown Charlotte, this lot is ready for development in the booming Enderly Park area. Plan have been approved for 8 townhomes and the lot is already subdivided. Architectural plans have been created with units at 2024 sqft, 3 bed, 3.5 bath, 737sqft rooftop terrace, private fronch porch and backyard facing the woods. Charlotte Engineering, Topographical Surveys, Urban Forestry, Sewer/Water, CDOT and Land Development plans/approvals in place. City Storm Water Mitigation Fee paid.
-
0BEDS
-
0.76ACRES
-
0BATHS
-
01/2 BATHS
School Information
Offered by Keller Williams Connected: 803-835-2300. Copyright 2026 Canopy MLS. All rights reserved.Description
Walking distance from uptown Charlotte, this lot is ready for development in the booming Enderly Park area. Plan have been approved for 8 townhomes and the lot is already subdivided. Architectural plans have been created with units at 2024 sqft, 3 bed, 3.5 bath, 737sqft rooftop terrace, private fronch porch and backyard facing the woods. Charlotte Engineering, Topographical Surveys, Urban Forestry, Sewer/Water, CDOT and Land Development plans/approvals in place. City Storm Water Mitigation Fee paid.
Based on information submitted to the MLS GRID as of 2026-02-18T20:33:49.963 UTC. All data is obtained from various sources and may not have been verified by broker or MLS GRID. Supplied Open House Information is subject to change without notice. All information should be independently reviewed and verified for accuracy. Properties may or may not be listed by the office/agent presenting the information.The data relating to real estate on this Web site derive in part from the Canopy MLS IDX program. Brokers make an effort to deliver accurate information, but buyers should independently verify any information on which they will rely in a transaction. All properties are subject to prior sale, change or withdrawal. Neither Premier Realty NC nor any listing broker shall be responsible for any typographical errors, misinformation, or misprints, and they shall be held totally harmless from any damages arising from reliance upon this data. This data is provided exclusively for consumers' personal, non-commercial use and may not be used for any purpose other than to identify prospective properties they may be interested in purchasing. © 2026 Canopy MLS.
“Listings courtesy of Canopy MLS as distributed by MLS GRID
Some IDX listings have been excluded from this website.
Digital Millennium Copyright Act
